Educational Building Plan dwg File

Educational Building Plan dwg File
Profile

Uploaded by:

Poonam

Description
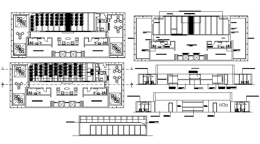
Educational institute building plan; shows the plan details along with the section details. It also showed the pantry area, setting arrangement, private office, and other AutoCAD details.
Profile

Uploaded by:

Poonam

find Latest

Related Files

WhatsApp Chat