One BHK house Design Architecture Plan Download
Description
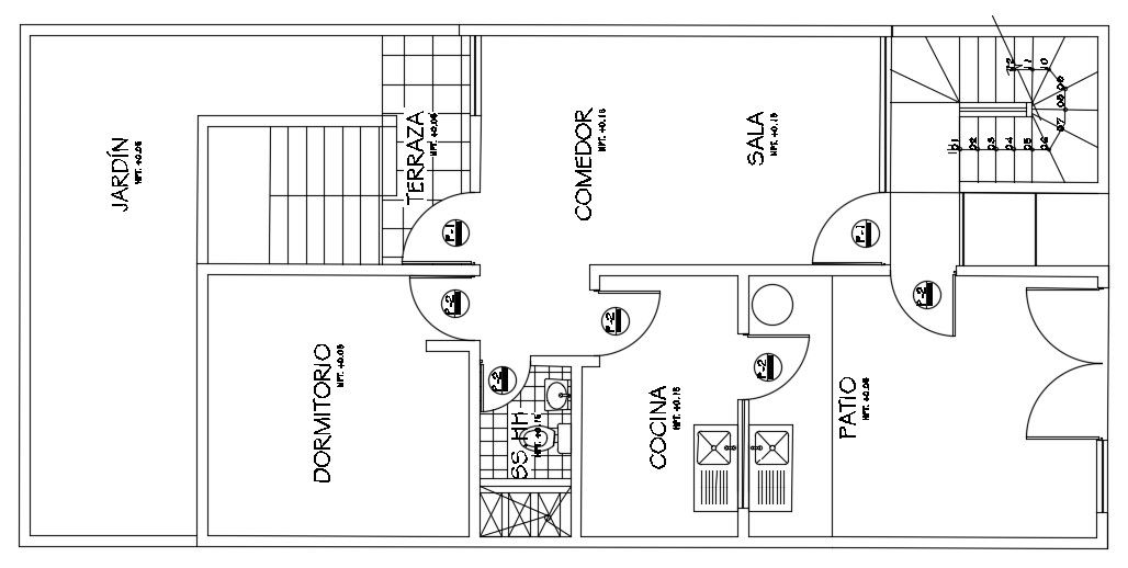
CAD drawing details of the residential house design plan that shows room details in house along with room dimension details in the house download file for free.

Uploaded by:
akansha
ghatge

Uploaded by:
ghatge