Condominium Architecture Design AutoCAD Drawing Plan
Description
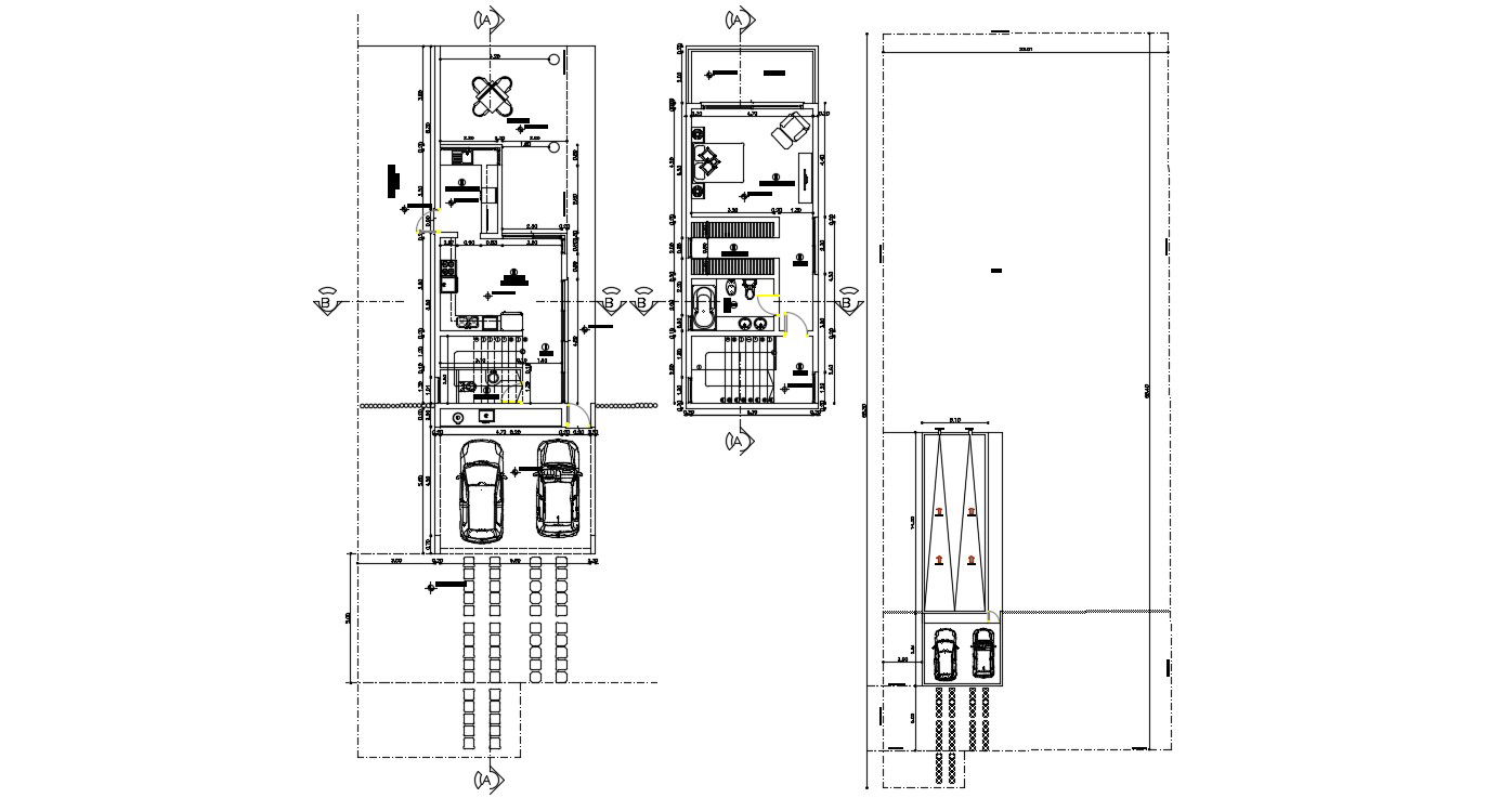
CAD Furniture layout design of house plan that shows working set dimension details, building floor level details, room details, parking space area, and various other house amenities detail download CAD file for detailed work drawing.

Uploaded by:
akansha
ghatge

