Residential Apartment Working Plan AutoCAD Drawing
Description
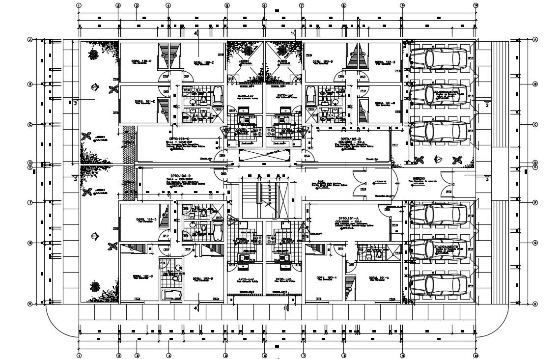
4 unit Cluster house design architectural plan that shows room details of each house along with working set dimension details, parking space area, section line, and various other details download CAD file for detailed work plan.

Uploaded by:
akansha
ghatge

