Free Download Bungalow Elevation AutoCAD Drawing
Description
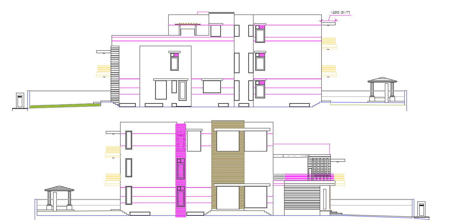
CAD drawing details of residential bungalow front elevation and side elevation that shows building height and various other details download files for free.

Uploaded by:
akansha
ghatge

Uploaded by:
ghatge