Residence Apartment design Architectural Plan AutoCAD drawing
Description
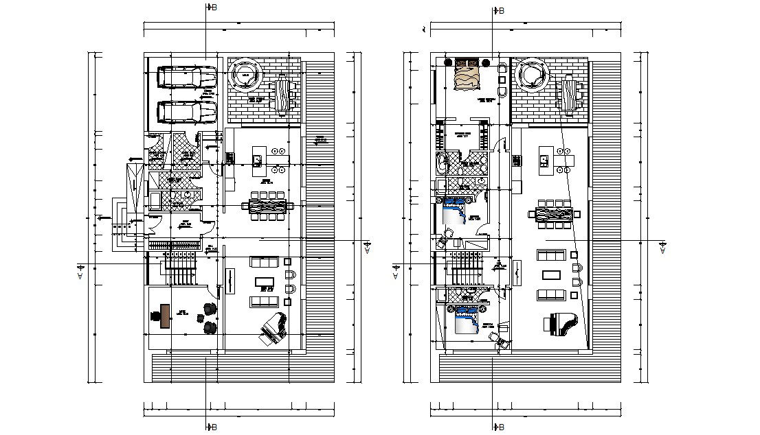
CAD drawing details of residential apartment furniture layout plan that shows working set dimension details, ground floor first-floor plan, section line, parking space, and various other details download file for detailed work drawing.
File Type:
DWG
File Size:
705 KB
Category::
Interior Design
Sub Category::
House Interiors Projects
type:
Gold

Uploaded by:
akansha
ghatge

