Residential Apartment Furniture Plan Architecture Drawing
Description
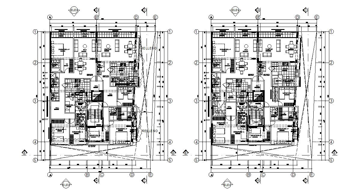
Furnished Living apartment that shows cluster house design that shows room details in the house along with working set dimension details, section line, room dimension, and various other details download CAD file.
File Type:
DWG
File Size:
602 KB
Category::
Interior Design
Sub Category::
House Interiors Projects
type:
Gold

Uploaded by:
akansha
ghatge
