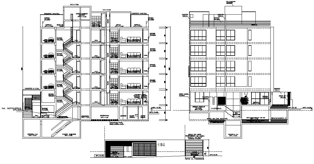
2d CAD drawing details of Apartment Elevation and Section Design
Description
2d CAD drawing details of residential apartment front elevation design and section drawing that shows building height each floor height and various other details download the file.

Uploaded by:
akansha
ghatge

