Two BHK Bungalow Plan and Elevation CAD Drawing
Description
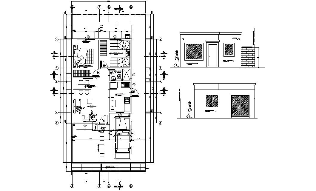
CAD drawing details of the furnished house plan design that shows house different sides of elevation like front elevation and side elevation, building height, working set dimension, section line, and various other details download file for detailed work drawing.
File Type:
DWG
File Size:
467 KB
Category::
Interior Design
Sub Category::
Bungalows Exterior And Interior Design
type:
Gold

Uploaded by:
akansha
ghatge

