Furnished 4 BHK Duplex House Design Plan
Description
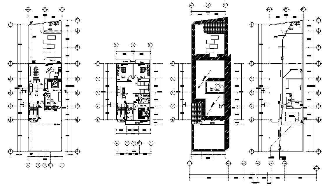
Furniture layout plan details of 4 bhk residential bungalow that shows bungalow floor level, terrace plan, dimension working set, section line, parking space area, compound boundary wall, and various other details download CAD drawing for detailed presented work drawing.
File Type:
DWG
File Size:
843 KB
Category::
Interior Design
Sub Category::
Bungalows Exterior And Interior Design
type:
Gold

Uploaded by:
akansha
ghatge

