Residential Apartment 2d CAD drawing Furniture Layout Plan
Description
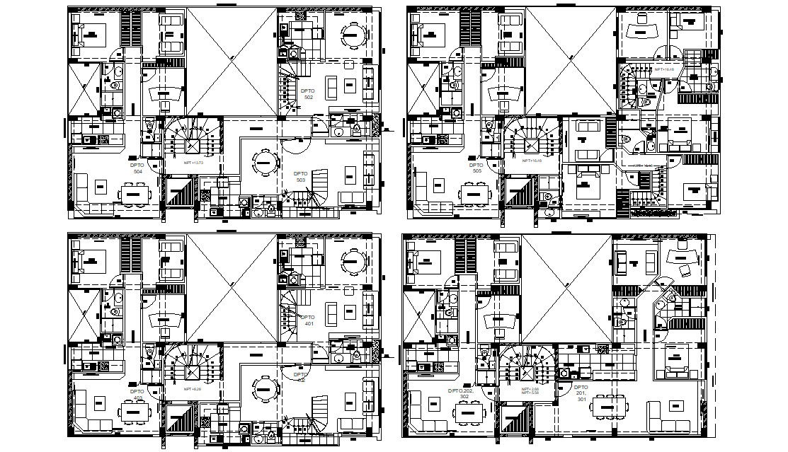
CAD drawing details of residential bungalow designing that shows furniture layout details in the house along with building floor level details, room details in the house, and various other details of apartment download file for detailed working drawing.
File Type:
DWG
File Size:
810 KB
Category::
Interior Design
Sub Category::
House Interiors Projects
type:
Gold

Uploaded by:
akansha
ghatge

