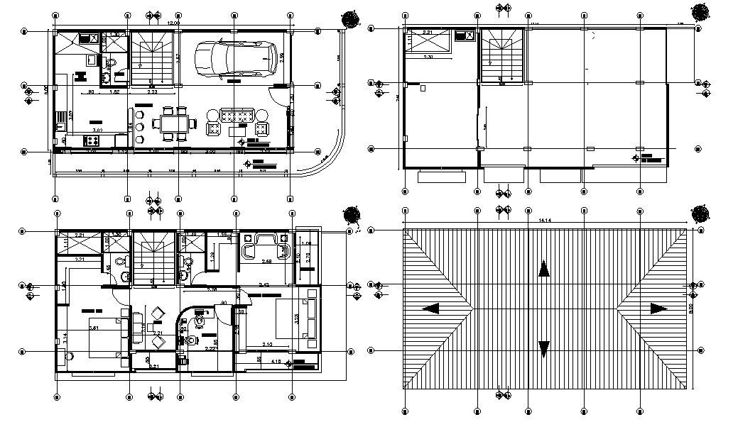
2 BHK Furnished Bungalow Layout CAD Plan
Description
Furniture layout arrangement details in residential; G+3 bungalow that shows room details of house, open terrace, roof terrace plan, working set dimension, section line, centerline, and various other details download CAD drawing for detailed working drawings.
File Type:
DWG
File Size:
472 KB
Category::
Interior Design
Sub Category::
Bungalows Exterior And Interior Design
type:
Gold

Uploaded by:
akansha
ghatge

