Mansion House Plan Design 2d Furniture Layout Plan
Description
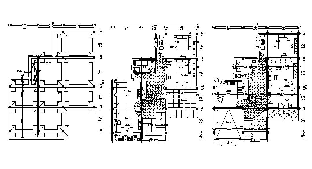
CAD drawing details of house column footing design details along with G+1 house furniture layout details, room details, dimension working set details, room dimension details, and various other details download the file.
File Type:
DWG
File Size:
411 KB
Category::
Interior Design
Sub Category::
Bungalows Exterior And Interior Design
type:
Gold

Uploaded by:
akansha
ghatge

