Single Storey House Design Elevation and Section CAD Drawing
Description
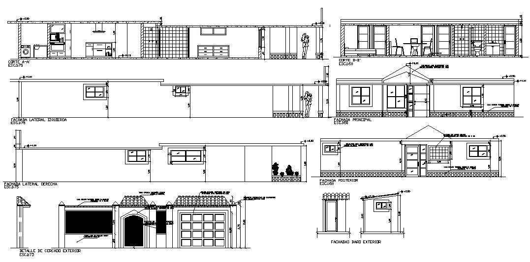
Residential house front elevation side elevation and rear elevation design along with sectional details of the house, floor height, and various other details download CAD drawing.

Uploaded by:
akansha
ghatge

