Furnished Apartment design Plan 2d AutoCAD drawing
Description
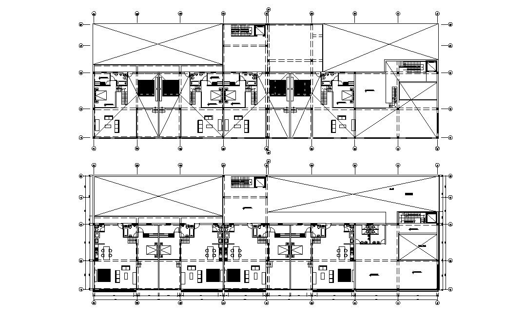
CAD drawing details of residential apartment furniture layout plan details along with dimension working set details, room dimension, centerline, staircase, and various other work details download the file.

Uploaded by:
akansha
ghatge

