RCC Column Design CAD Drawing Download
Description
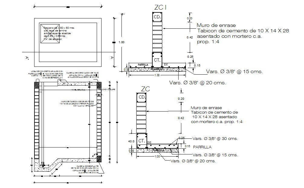
2d drawing details of Reinforced column design that shows column footing structure details along with reinforcement bars details in tension and compression zone, main and distribution hook and bent up bars details, concrete masonry work, and other structural blocks detailing download CAD drawing.

Uploaded by:
akansha
ghatge

