Column Pad Footing Design RCC structure CAD drawing
Description
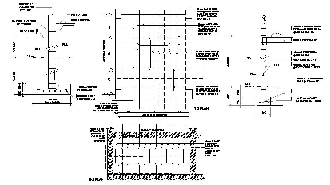
CAD construction details of RCC footing and slab design that shows reinforcement details in tension and compression zone along with main and distribution hook up and bent up bars details, footing and column size details, and various other RCC structure work detailing download file.

Uploaded by:
akansha
ghatge
