Home Electrical Wiring CAD Drawing Plan

Home Electrical Wiring CAD Drawing Plan
Profile

Uploaded by:

akansha

ghatge

Description
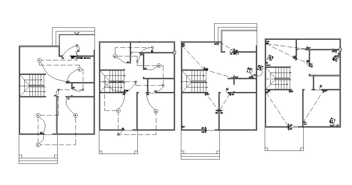
Electrical installation plan of residential apartment details in a residential house that shows electrical wiring design, fuse circuits, switch panel details download CAD drawing.
Profile

Uploaded by:

akansha

ghatge

find Latest

Related Files