LOGIN
HOME
CATEGORIES
UPLOAD FILE
PRICING
HOUSE PLAN
ABOUT US
CONTACT US
One Bedroom Apartments Plan DWG File
Home
Categories
Architecture
Apartment Drawing
One Bedroom Apartments Plan DWG File
Uploaded by:
Komal
View Profile
View Profile
Description
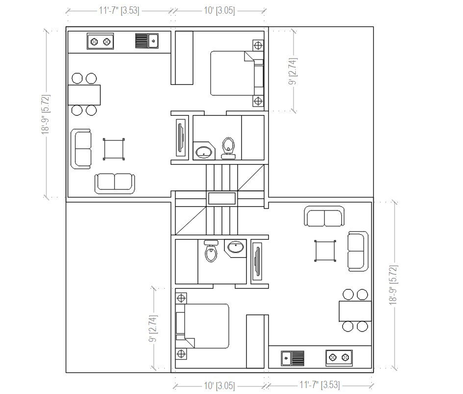
One Bedroom Apartments Plan DWG File; 2d CAD drawing of house furniture layout plan includes 1 bedroom, kitchen, and living room with all dimension detail.
File Type:
DWG
File Size:
428 KB
Category::
Architecture
Sub Category::
Apartment Drawing
type:
Gold
Uploaded by:
Komal
View Profile
Download
Add to libary
find Latest
Related
Files