G+1 Bungalow Elevation and Section AutoCAD drawing
Description
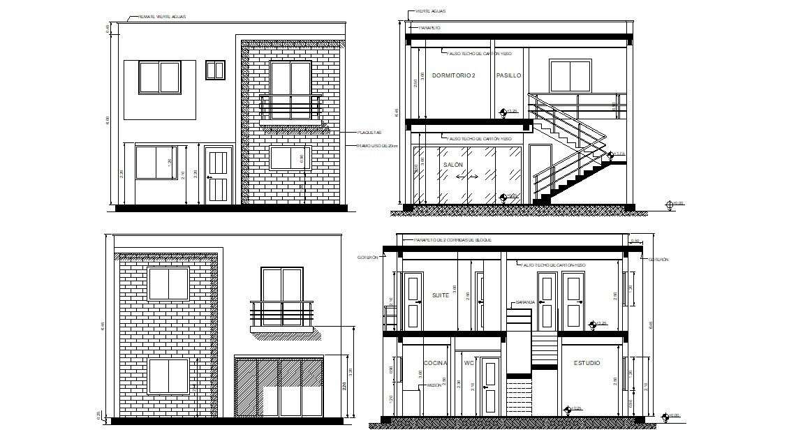
Furniture layout details of residential bungalow that shows dimension working set details, house floor level, house rooms, section line, house length width, and various other details download CAD drawing for the detailed presented work plan.

Uploaded by:
akansha
ghatge
