Living Apartment Elevation and Section CAD drawing
Description
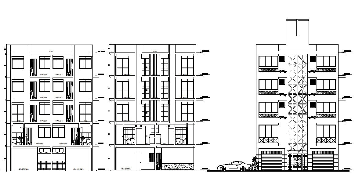
CAD sectional drawing details of the multi-story residential apartment along with apartment front elevation, floor level, building and floor height, and various other details download file for free.

Uploaded by:
akansha
ghatge
