CAD Apartment Design Architecture Plan
Description
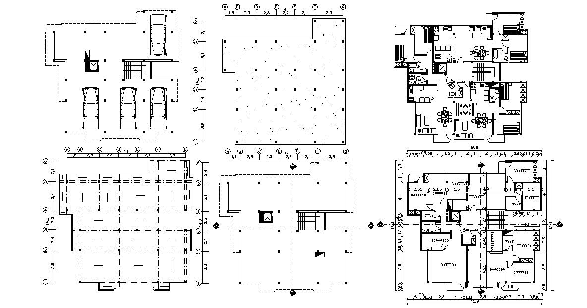
CAD drawing details of apartment furniture layout plan, column arrangement plan, working drawing, basement parking plan details along with dimension working set, terrace plan, and various other details of apartment download file for the detailed work plan.

Uploaded by:
akansha
ghatge

