5 BHK Mansion House Design Layout Plan
Description
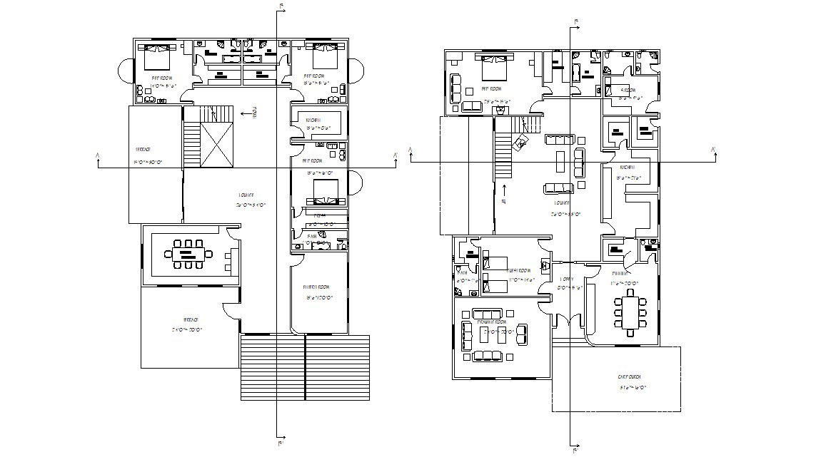
Residential G+1 Bungalow Design Plan that shows furniture blocks details in the house along with room dimension details, room details in the house, staircase, section line, and various other detailed work download CAD drawing.
File Type:
DWG
File Size:
1.5 MB
Category::
Interior Design
Sub Category::
Bungalows Exterior And Interior Design
type:
Gold

Uploaded by:
akansha
ghatge

