Bungalow First Floor plan AutoCAD drawing
Description
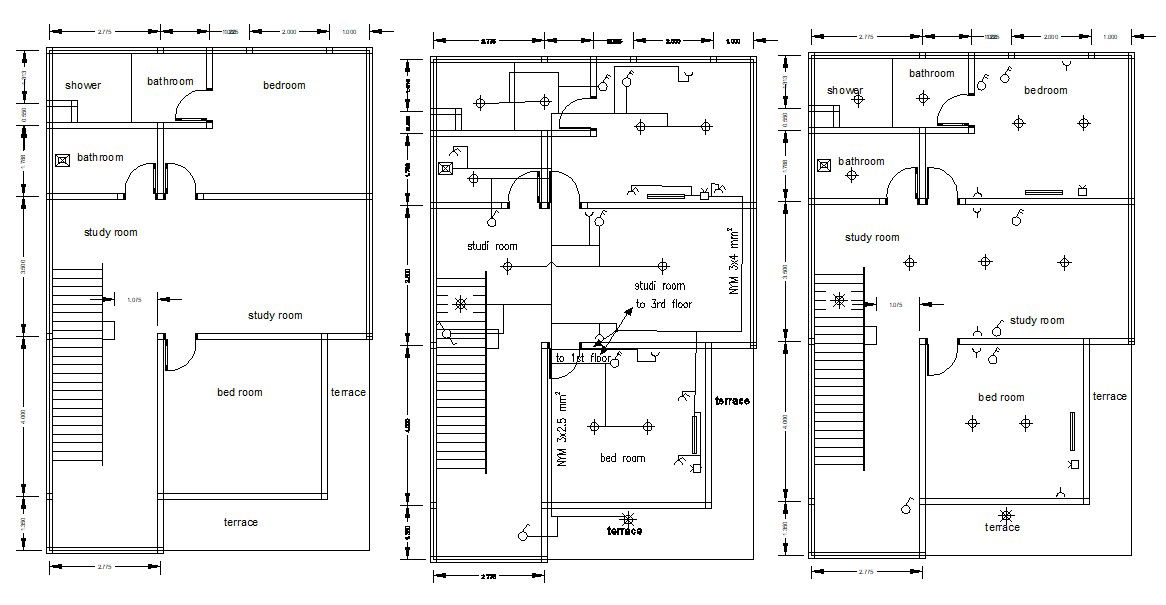
Layout plan design of residential bungalow that shows dimension working set details along with house room details and various other details download CAD file for free.

Uploaded by:
akansha
ghatge

Uploaded by:
ghatge