Residential 3 BHK Bungalow Furniture Layout Plan
Description
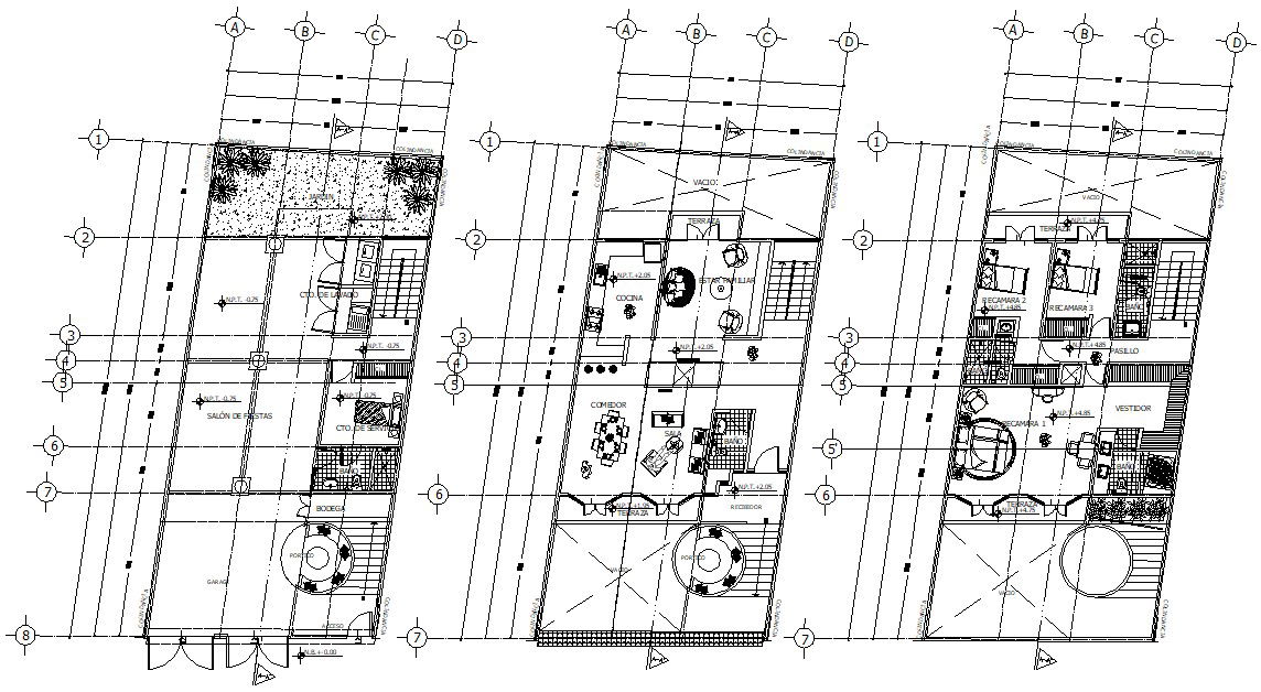
Bungalow design architecture plan that shows room details in the house along with dimension working set details, house floor level, section line, landscaping, and various other details download CAD drawing for detail presented file.
File Type:
DWG
File Size:
389 KB
Category::
Interior Design
Sub Category::
Bungalows Exterior And Interior Design
type:
Gold

Uploaded by:
akansha
ghatge
