Bungalow Facade Architecture Design file Free download
Description
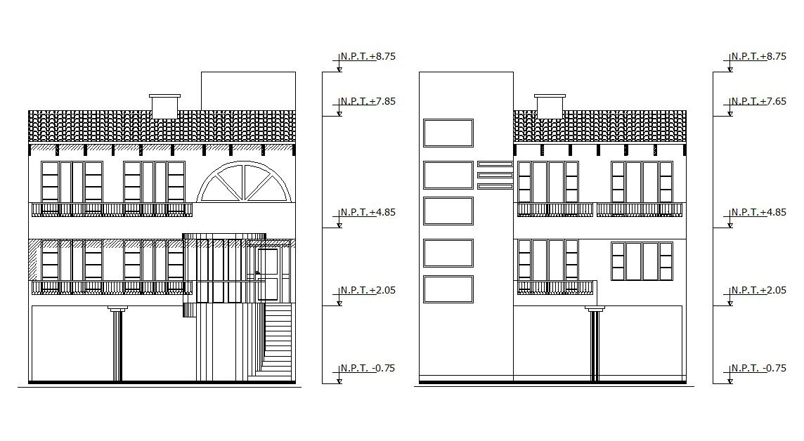
2d CAD drawing details of residential bungalow front elevation and side elevation details along with house floor level details download CAD file for free.

Uploaded by:
akansha
ghatge

Uploaded by:
ghatge