Building Site Plan and Floor Plan CAD File
Description
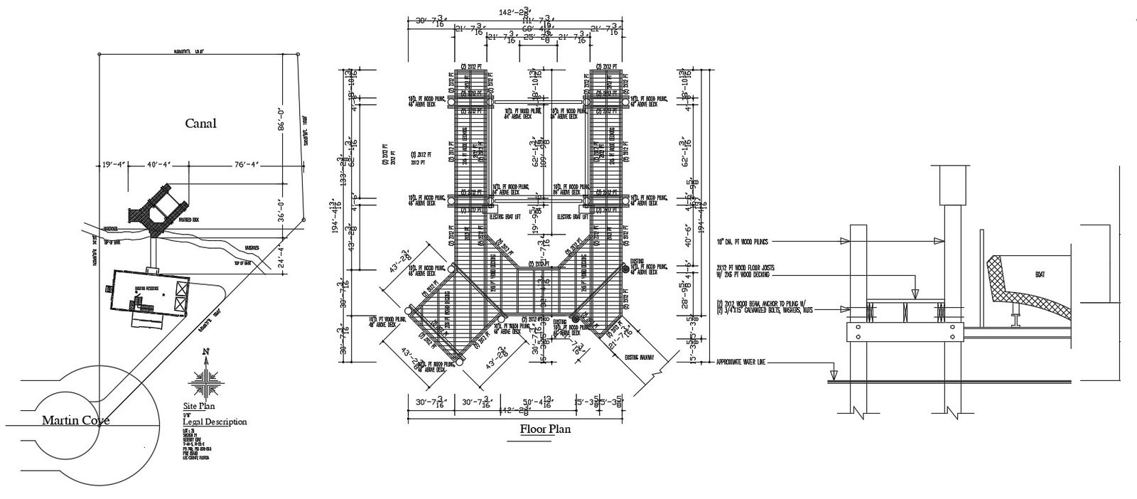
2d CAD drawing details of bungalow floor plan design along with house site area details, plot size, dimension set, and various other details download file for free.

Uploaded by:
akansha
ghatge

Uploaded by:
ghatge