Bungalow Residence Project 2d CAD Drawing
Description
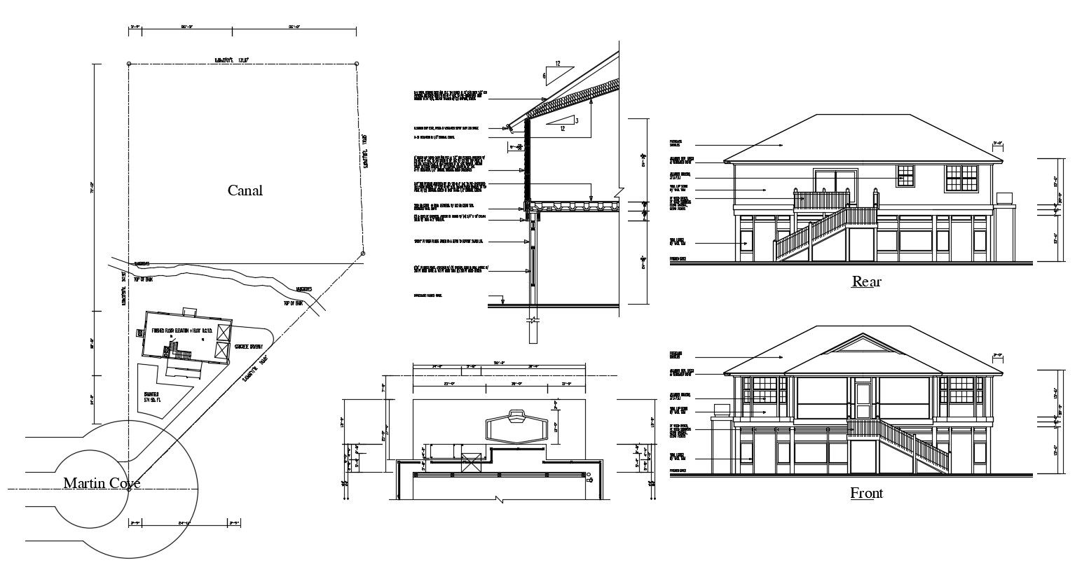
Home elevation design drawing along with residential house area planning details, dimension set, and various other details download AutoCAD drawing.

Uploaded by:
akansha
ghatge

Uploaded by:
ghatge