LOGIN
HOME
CATEGORIES
UPLOAD FILE
PRICING
HOUSE PLAN
ABOUT US
CONTACT US
Pergola Design AutoCAD Drawing
Home
Categories
Landscape
Garden Automation
Pergola Design AutoCAD Drawing
Uploaded by:
Komal
View Profile
View Profile
Description
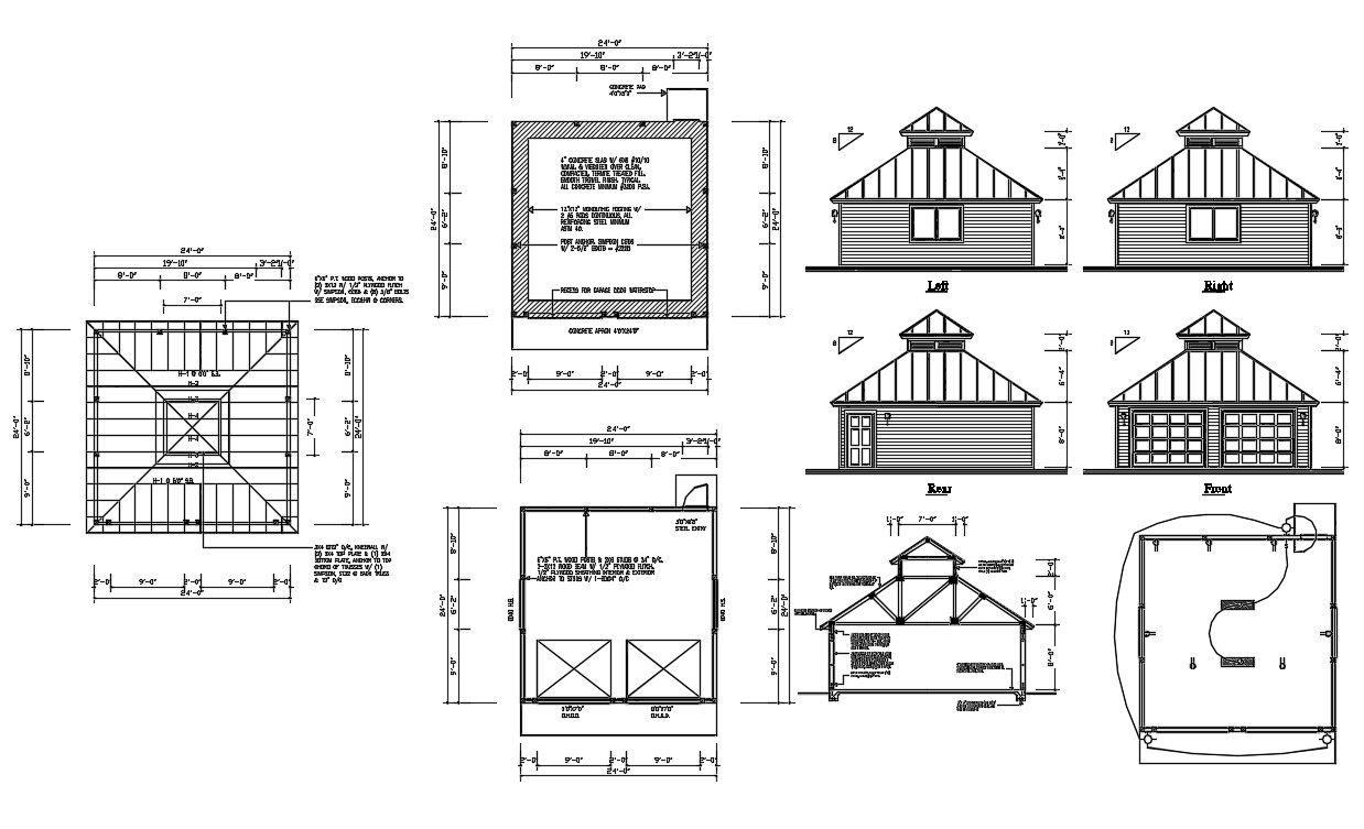
Pergola Design AutoCAD Drawing; download DWG file of the pergola floor plan, roof plan, and elevation design with dimension detail in AutoCAD format.
File Type:
DWG
File Size:
124 KB
Category::
Landscape
Sub Category::
Garden Automation
type:
Gold
Uploaded by:
Komal
View Profile
Download
Add to libary
find Latest
Related
Files