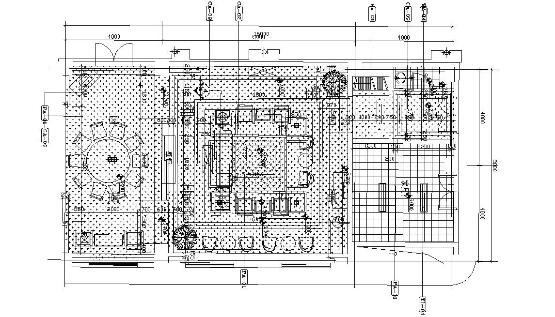
Living Room and Dining Room Design Furniture Layout Plan
Description
Drawing room and dining room plan that shows furniture blocks details of sofa-set, dining table and chair, dimension set, and various other furniture blocks details in room download a CAD file.
File Type:
DWG
File Size:
3.3 MB
Category::
Interior Design
Sub Category::
Drawing And Living Area Interior Design
type:
Free

Uploaded by:
akansha
ghatge

