Residential Two BHK Apartment Furniture Layout Plan
Description
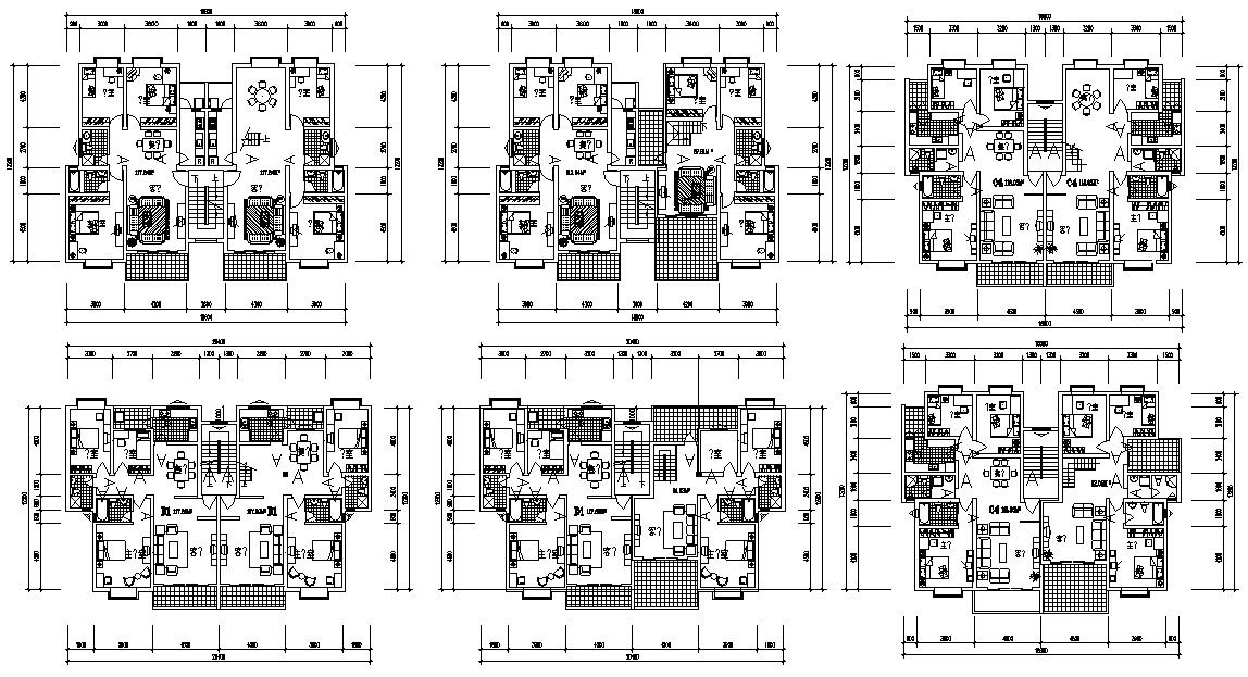
2d AutoCAD drawing details of residential apartment design that shows house furniture layout plan details along with room details in the house, dimension working set, apartment floor level, and various other works details download CAD drawing.
File Type:
DWG
File Size:
498 KB
Category::
Interior Design
Sub Category::
House Interiors Projects
type:
Gold

Uploaded by:
akansha
ghatge

