LOGIN
HOME
CATEGORIES
UPLOAD FILE
PRICING
HOUSE PLAN
ABOUT US
CONTACT US
Building Construction Center Line Plan AutoCAD Drawing
Home
Categories
Architecture
Apartment Drawing
Building Construction Center Line Plan AutoCAD Drawing
Uploaded by:
akansha
ghatge
View Profile
View Profile
Description
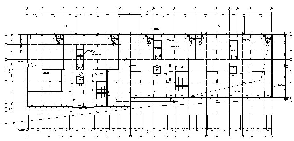
Free Download center line plan of apartment design that shows dimension set details, floor leveling, and various other details.
File Type:
DWG
File Size:
343 KB
Category::
Architecture
Sub Category::
Apartment Drawing
type:
Free
Uploaded by:
akansha
ghatge
View Profile
Download
Add to libary
find Latest
Related
Files