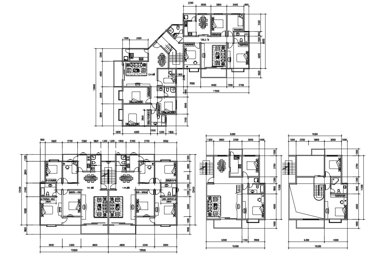
4 BHK Apartment Furniture Layout Plan
Description
2d CAD drawing details of residential apartment that shows furniture arrangement details in the apartment along with dimension working set, room details in the house, staircase, and various other amenities details of apartment download file for detail presented work plan.

Uploaded by:
akansha
ghatge

