3 BHK Cluster Apartment Design Plan
Description
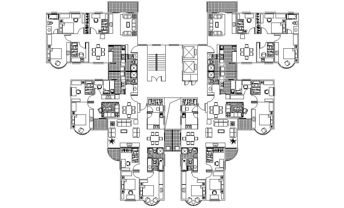
Residential living apartment 4 units cluster layout plan that shows 3 bhk apartment furniture arrangement details along with room details in the apartment and building various amenities details download AutoCAD Drawing for detail presented work plan.
File Type:
DWG
File Size:
495 KB
Category::
Interior Design
Sub Category::
House Interiors Projects
type:
Gold

Uploaded by:
akansha
ghatge

