LOGIN
HOME
CATEGORIES
UPLOAD FILE
PRICING
HOUSE PLAN
ABOUT US
CONTACT US
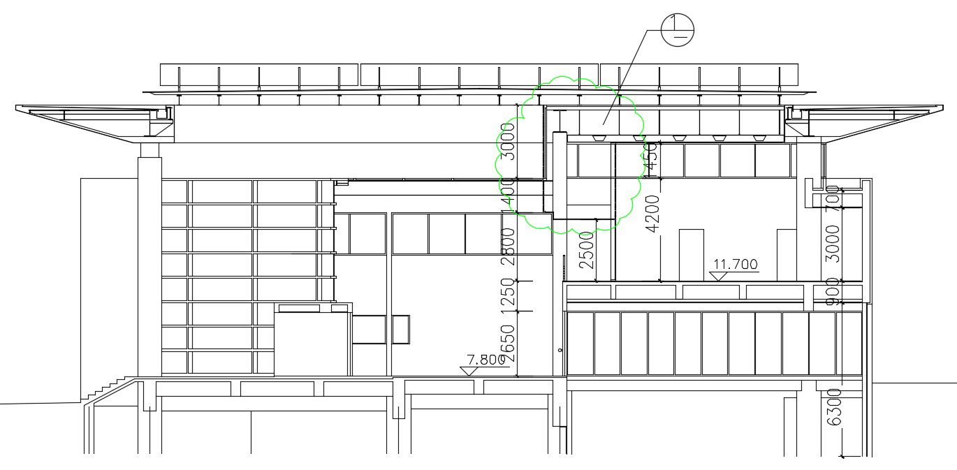
Restaurant Building Section Design
Home
Categories
Architecture
Hotels and Restaurants
Restaurant Building Section Design
Uploaded by:
akansha
ghatge
View Profile
View Profile
Description
CAD sectional drawing details of restaurant that shows cash counter area details along with building leveling and height details download file for free.
File Type:
DWG
File Size:
195 KB
Category::
Architecture
Sub Category::
Hotels and Restaurants
type:
Free
Uploaded by:
akansha
ghatge
View Profile
Download
Add to libary
find Latest
Related
Files