Download Room Design Plan DWG File Free
Description
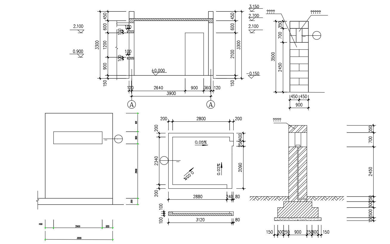
Download Room Design Plan DWG File Free; this is the simple room design with a plan, elevation, section, includes, working dimension, wall foundation in CAD format.

Uploaded by:
Eiz
Luna

Uploaded by:
Luna