Commerce Building and Apartments Layout Plan

Commerce Building and Apartments Layout Plan
Profile

Uploaded by:

akansha

ghatge

Description
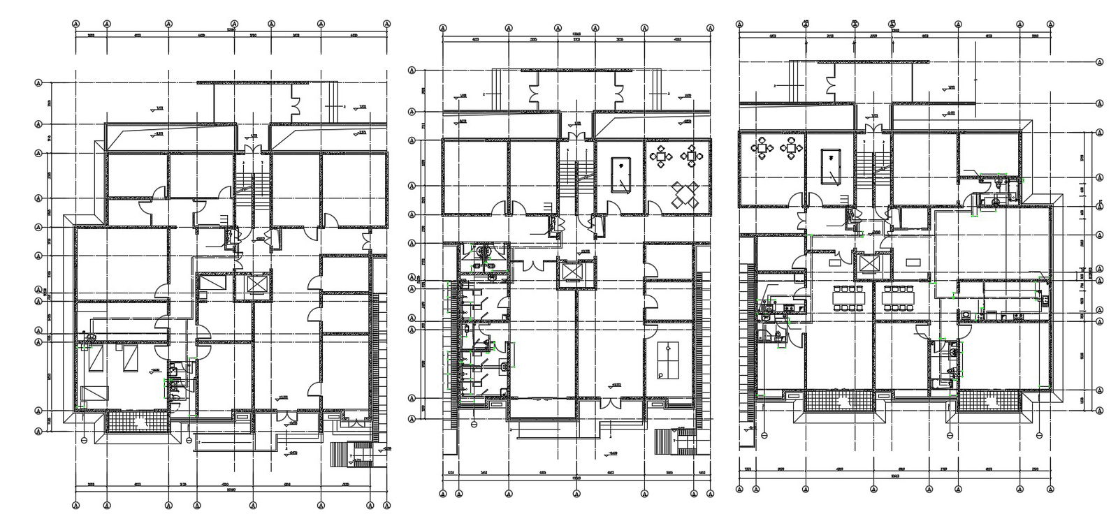
CAD drawing details of commercial building design plan along with apartment plan that shows building dimension working set, centerline, staircase, building floor level, and various other building amenities details download file for detailed presented work drawing plan.
Profile

Uploaded by:

akansha

ghatge

find Latest

Related Files

WhatsApp Chat