Residence House Design Plan and Elevation CAD Drawing
Description
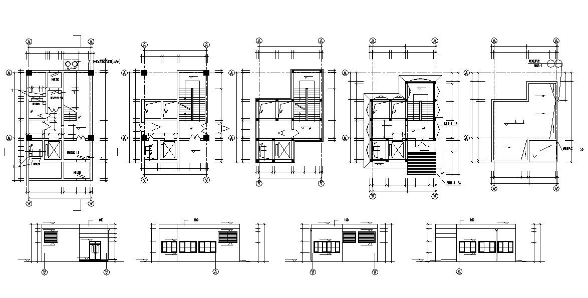
Residence single storey house construction plan that includes house dimension working set, working plan, column plan, and building different sides of elevation details download AutoCAD drawing for detailed presented work.

Uploaded by:
akansha
ghatge
