Building Plan and Service Area Design CAD file
Description
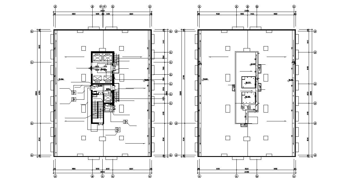
Building a staircase design plan along with elevator details dimension working set, centerline, and various other units details download CAD file for free.

Uploaded by:
akansha
ghatge

Uploaded by:
ghatge