Commercial Office Building Plan Dwg file
Description
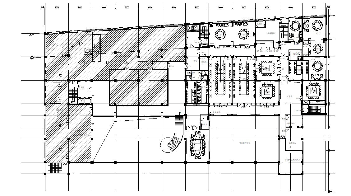
The commercial office building plan includes the details of the office along with the furniture details with workspace area, waiting room, private cabins, washroom, and many more details. It also has shown the center line plan along with dimension details.
Uploaded by:

