LOGIN
HOME
CATEGORIES
UPLOAD FILE
PRICING
HOUSE PLAN
ABOUT US
CONTACT US
Apartment staircase Design Plan
Home
Categories
Architecture
Apartment Drawing
Apartment staircase Design Plan
Uploaded by:
Poonam
View Profile
View Profile
Description
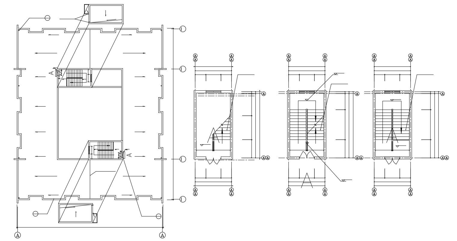
The apartment staircase building plan shows the details of the staircase along with the hidden dimension details.
File Type:
DWG
File Size:
595 KB
Category::
Architecture
Sub Category::
Apartment Drawing
type:
Gold
Uploaded by:
Poonam
View Profile
Download
Add to libary
find Latest
Related
Files