Commercial Building Design CAD Furniture Layout Plan
Description
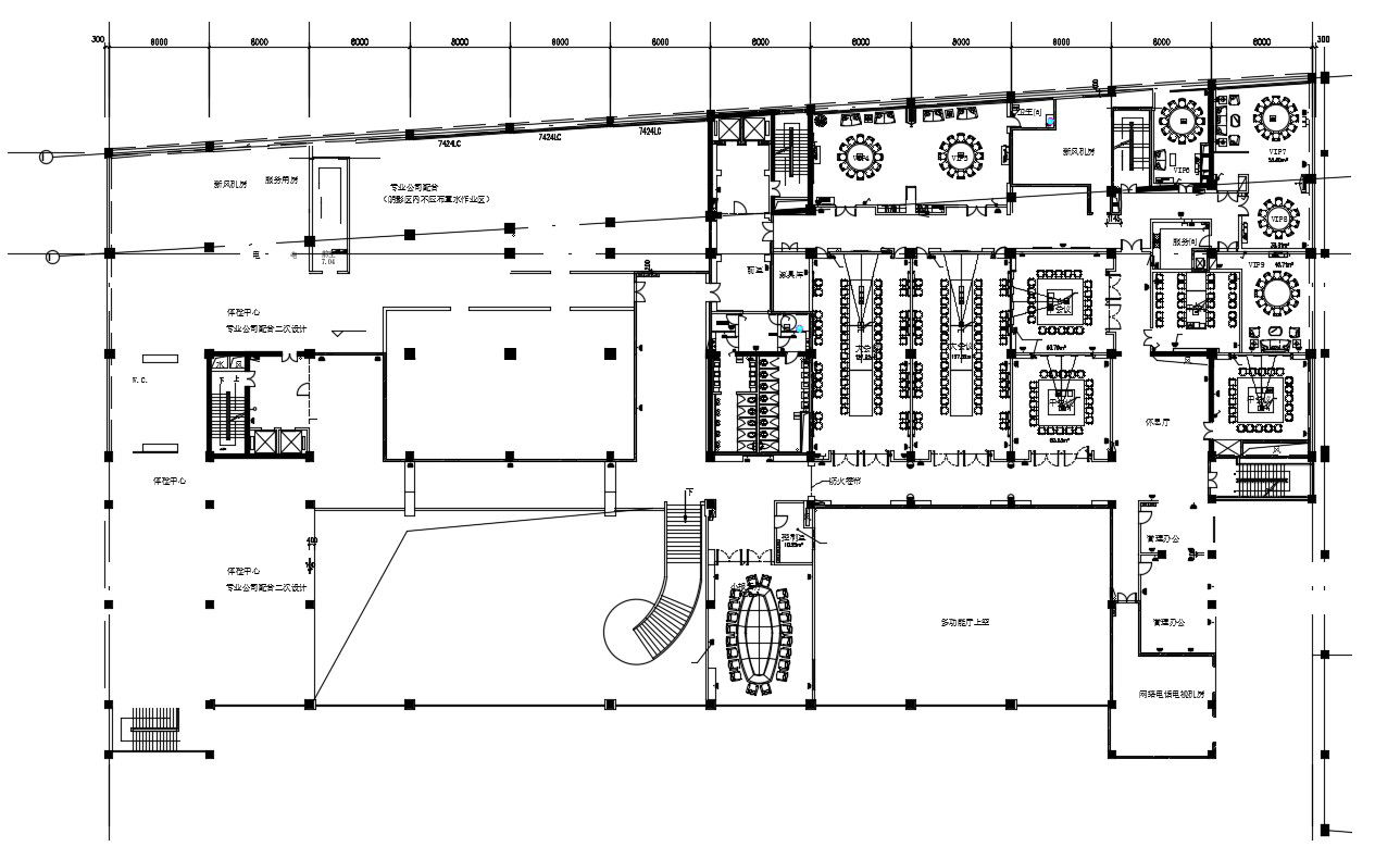
2d CAD drawing details of commercial building meeting room design plan that shows furniture details in various rooms along with building amenities details of the staircase, elevators, multi-purpose hall, and others download file for the detailed presented work plan.

Uploaded by:
akansha
ghatge

