Bungalow Layout Electrical Wiring Plan CAD File Download
Description
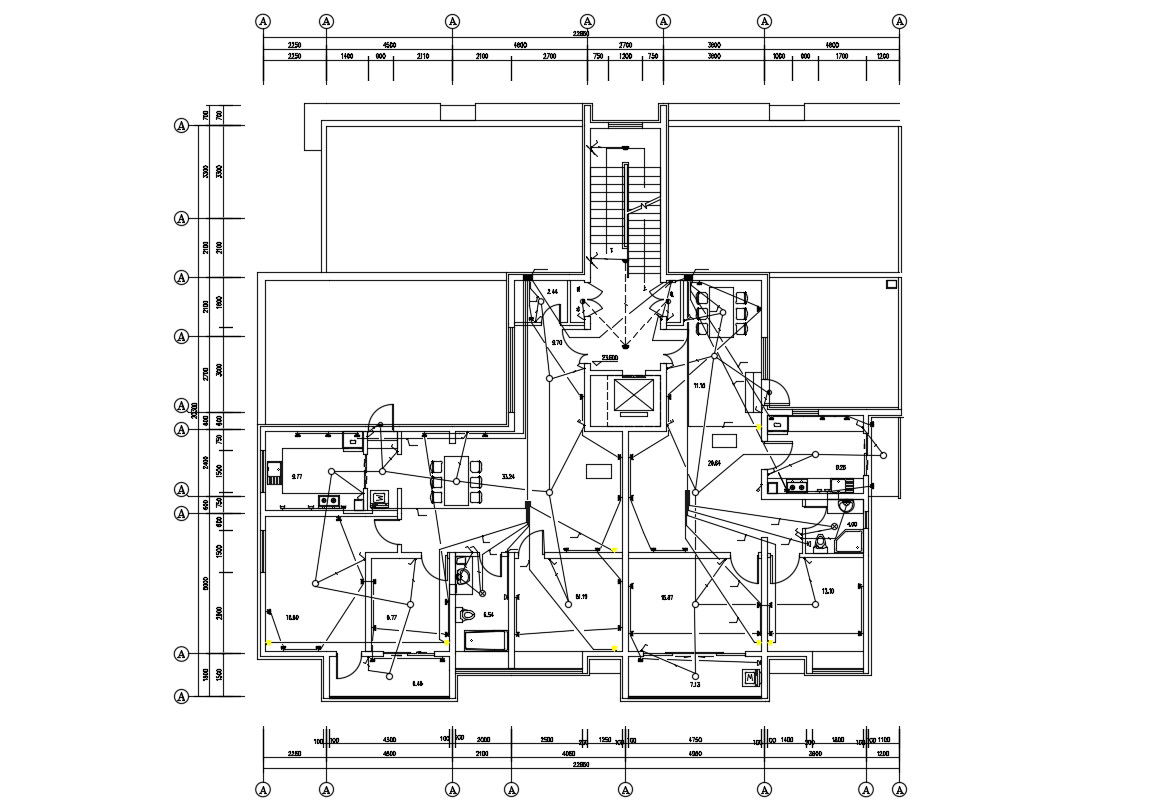
Electrical Wiring plan of a residential bungalow that shows electrical switch panel board, earthing fire, fuse circuits, and various other electrical units details download CAD file for the detailed presented plan.

Uploaded by:
akansha
ghatge

