Area Layout Design Plan AutoCAD Drawing
Description
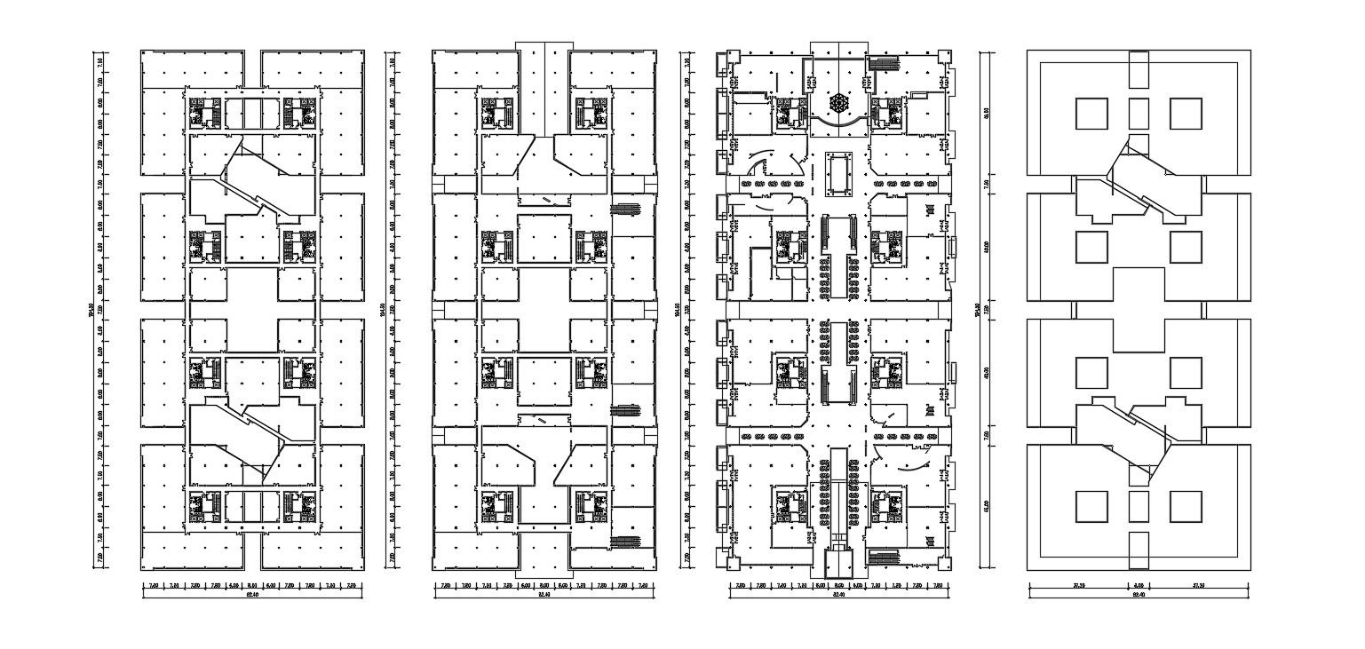
Building area design plan that shows existing building unit details along with road network details, parking space area, and various other details download CAD drawing.

Uploaded by:
akansha
ghatge

Uploaded by:
ghatge