Water Park Layout Design Plan CAD Drawing Download
Description
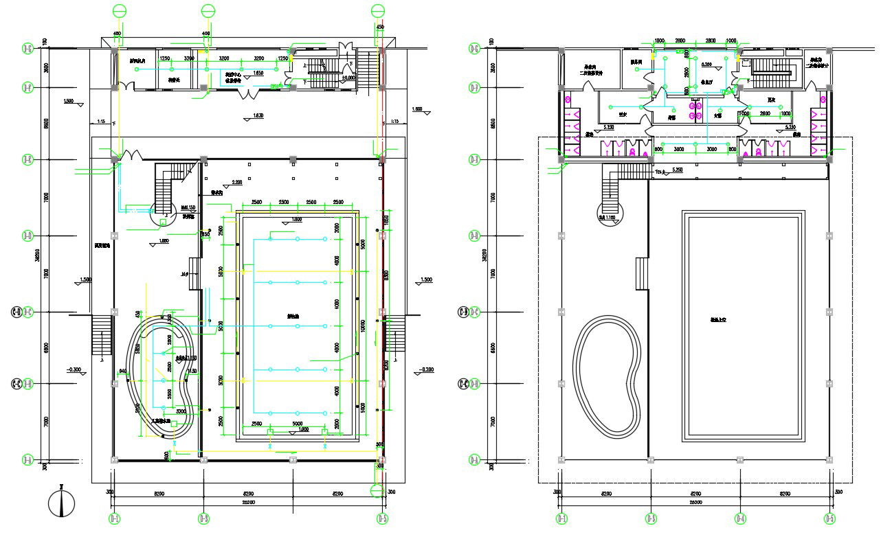
CAD drawing details of water park design plan that shows swimming pool design details along with water park service amenities details of changing room, shower area, lockers room, ticket counter area, and various other details download the file.

Uploaded by:
akansha
ghatge

