Furnished House CAD Drawing
Description
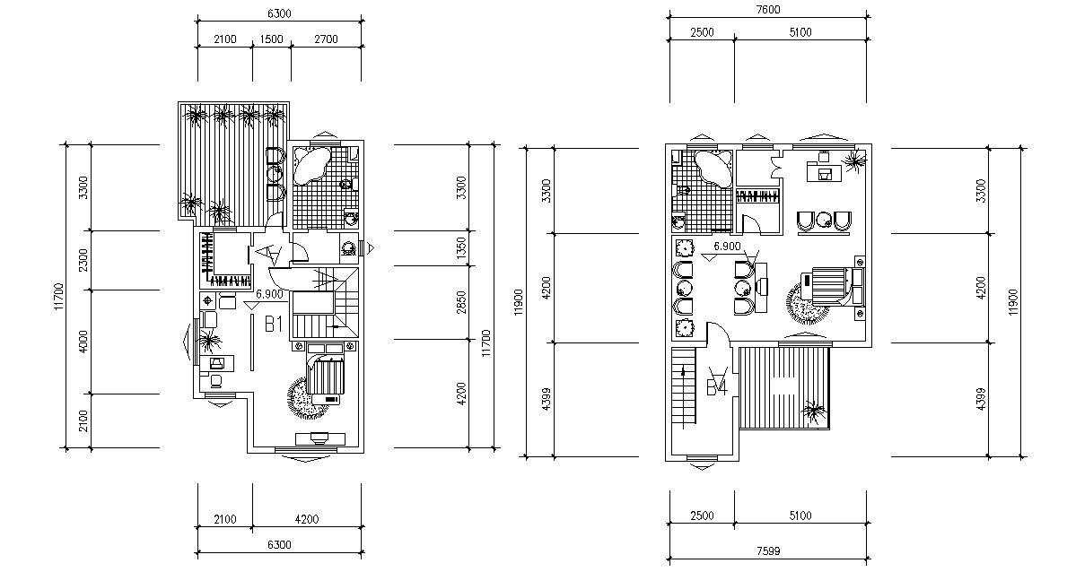
The house plan shows the details of a furnished ground floor plan and first-floor plan. The ground floor shows the details of the garden area, kitchen, one bedroom, hall, bathroom along the staircase to the first floor. The first floor shows the details of one bedroom, kitchen, hall, bathroom, sitting room, and many more. Also given the dimension details.
Uploaded by:
