Commercial Office Building Furniture Layout Plan
Description
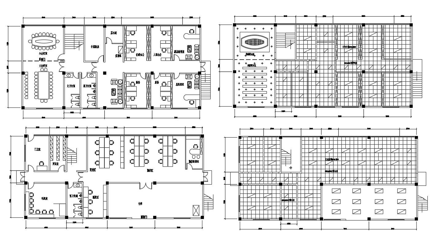
Office Building design plan that shows furniture arrangement in building along with dimension set building ceiling plan office building amenities details of private and workspace station, conference meeting room, waiting room, reception area, and various other details download CAD drawing for the detailed presented work plan.
File Type:
DWG
File Size:
389 KB
Category::
Interior Design
Sub Category::
Modern Office Interior Design
type:
Gold

Uploaded by:
akansha
ghatge

