Sport Building Center Elevation and Section CAD Drawing
Description
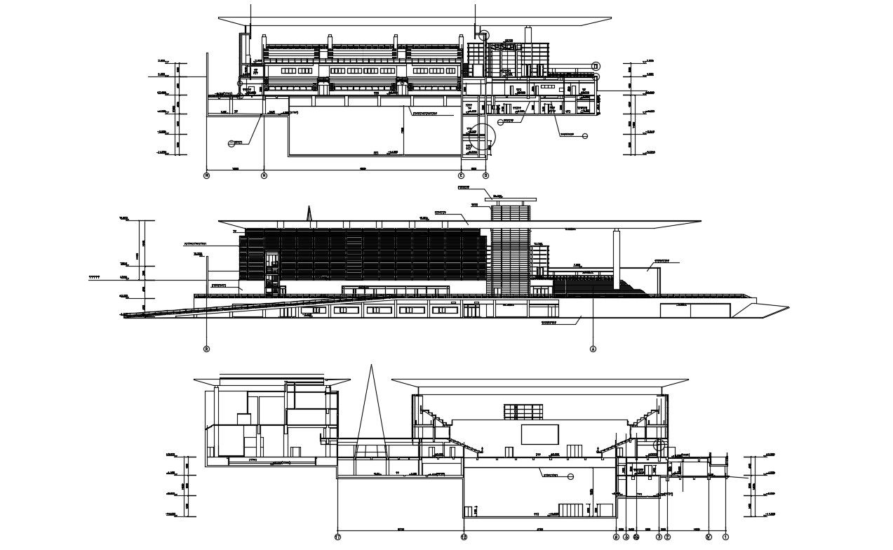
Sports center building front elevation design along with building sectional details, staircase design, building floor height, centerline, and various other units details presented in CAD drawing download file.

Uploaded by:
akansha
ghatge
