Residence Apartment Elevation and Section CAD File
Description
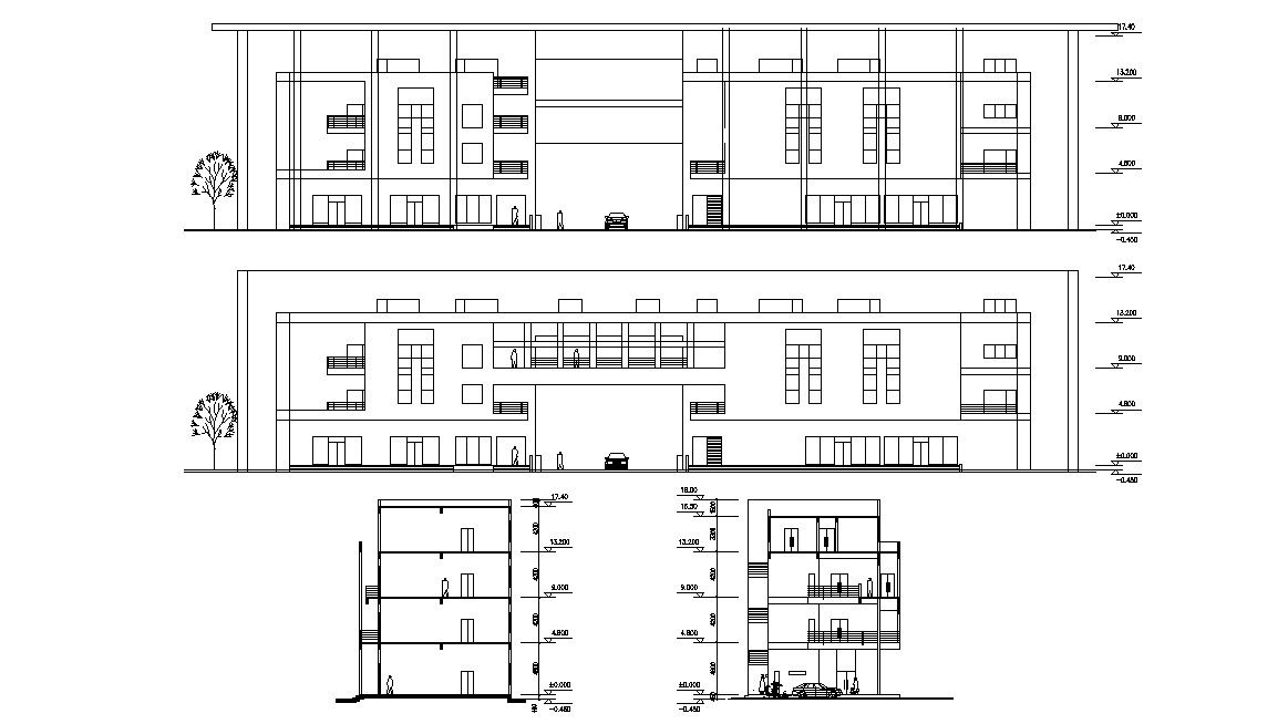
Residential housing apartment front elevation and rear elevation design along with apartment section details, building floor leveling, floor height, and various other units details download a CAD file.

Uploaded by:
akansha
ghatge

