LOGIN
HOME
CATEGORIES
UPLOAD FILE
PRICING
HOUSE PLAN
ABOUT US
CONTACT US
Shopping Mall AutoCAD Drawing Dwg File
Home
Categories
Architecture
Mall & Shopping Center
Shopping Mall AutoCAD Drawing Dwg File
Uploaded by:
Poonam
View Profile
View Profile
Description
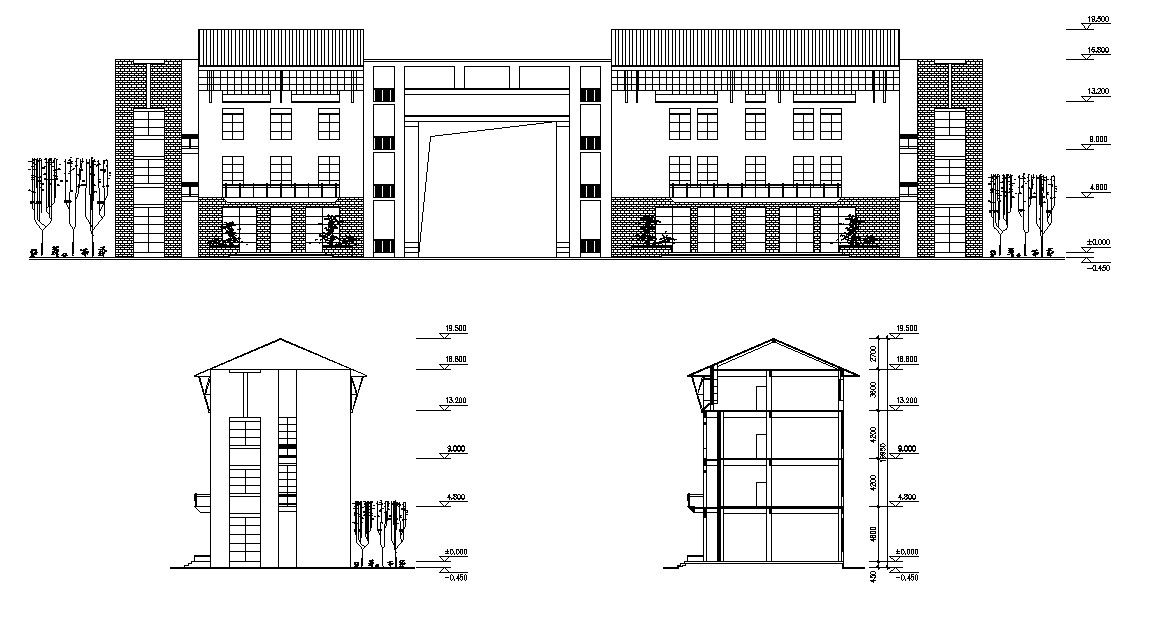
Shopping mall plan shows the details of the big entrance, front elevation and side elevation of the mall. It also has shown the section and the dimension details.
File Type:
DWG
File Size:
145 KB
Category::
Architecture
Sub Category::
Mall & Shopping Center
type:
Gold
Uploaded by:
Poonam
View Profile
Download
Add to libary
find Latest
Related
Files